Mẫu nhà phố sân vườn 3 tầng mái bằng là mẫu nhà phố đang rất được ưa chuộng hiện nay bởi thiết kế hiện đại, phong cách tối giản nhưng đầy tinh tế mà công trình này đem lại. Không những vậy, mẫu nhà phố sân vườn này rất phù hợp cho hộ gia đình đa thế hệ. Ngôi nhà phù hợp cho cả người già, cao tuổi thích một không gian thoáng đãng, thân thiện với môi trường, trồng cây, có thú vui chơi cây cảnh và phù hợp với cả trẻ em hiếu động. Tìm hiểu ngày cùng HATIHOME về thiết kế công trình này ngay.
Mục lục
1. Tổng quan về nhà phố 3 tầng mái bằng tại Hà Nội
Nhà được thiết kế 2 mặt tiền thoáng đãng. Bao gồm sân trước, hồ bơi và sân vườn cỏ. Với những người yêu cây xanh, thì chắc hẳn đây là một ngôi nhà lý tưởng vì xung quanh trồng rất nhiều cây, trên ban công tầng 2 và 3 cũng được phủ xanh bằng các loại cây leo, cây hoa càng làm ngôi nhà gần gũi với thiên nhiên hơn.

Nhà phố sân vườn mái bằng 3 tầng
Bên cạnh vườn là một chiếc bể bơi. Việc xây dựng bể bơi vừa cân bằng lại phong thủy của căn nhà mà lại tạo cho ngôi nhà một không gian vui chơi rất thoáng đãng và thoải mái mà cấu trúc toàn thể rất liền mạch, không bị tách rời.

Không gian thoáng đãng, mát mẻ
Thiết kế biệt thự 3 tầng sử dụng các khung cửa nhôm kính lớn. Tạo tầm nhìn rộng và bao quát ra khung cảnh sân vườn bên ngoài, không gian xung quanh nhà. Tạo cảm giác gần gũi với thiên nhiên. Đồng thời cây xanh cũng giúp ngôi nhà có được hệ thống thanh lọc không khí một cách tự nhiên.
Không những vậy, hệ thống đèn nhà cũng đặc biệt được chú trọng. Thay vì lắp đèn bình thường, anh Tiến đã cho lắp một hệ thống các bóng đèn nhỏ để làm sáng rực toàn bộ ngôi nhà, giúp ngôi nhà nổi bật mọi ngóc ngách trong đêm tối.

Biệt thự sân vườn mái bằng 3 tầng mặt tiền 1
Điều đặc biệt của ngôi nhà này đó chính là phần mái bằng. Khác biệt hoàn toàn với các mái chóp, mái nhật như cũ, mái bằng lại như một điểm nhấn là ngôi nhà có tính sáng tạo và ấn tượng hơn.
Với cách bố trí hợp lý cùng các hình khối đơn giản nhưng lại rất ăn nhập vào tổng thể ngôi nhà, tất cả đã tạo nên một phối cảnh hiện đại làm nên thành công của một công trình kiến trúc.

Biệt thự sân vườn mái bằng 3 tầng mặt tiền
2. Bố cục của Biệt thự sân vườn mái bằng 3 tầng.
2.1 Bố cục tầng 1
Tầng trệt được bố trí không gian sinh hoạt chung. Nên chỉ có một phòng ngủ và đa số là không gian sinh hoạt chung của cả gia đình. Bao gồm 1 phòng ngủ, phòng khách, phòng bếp, nhà vệ sinh, cầu thang và một sân ướt nhỏ.

Mặt bằng tầng 1
Đầu tiên bước vào của chính sẽ là không gian phòng khách. Từ phòng khách thiết kế liên thông với phòng bếp. Cầu thang được đặt ở giữa. Thiết kế đối diện phòng bếp là phòng ăn, không gian khá thoáng và rộng. Khu vực vệ sinh chung được đặt cuối dãy nhà. Sân sau được chừa để đón nhận được nhiều ánh sáng và gió không khí lưu thông cho không gian.

Mặt bằng tầng 1 bản 3D
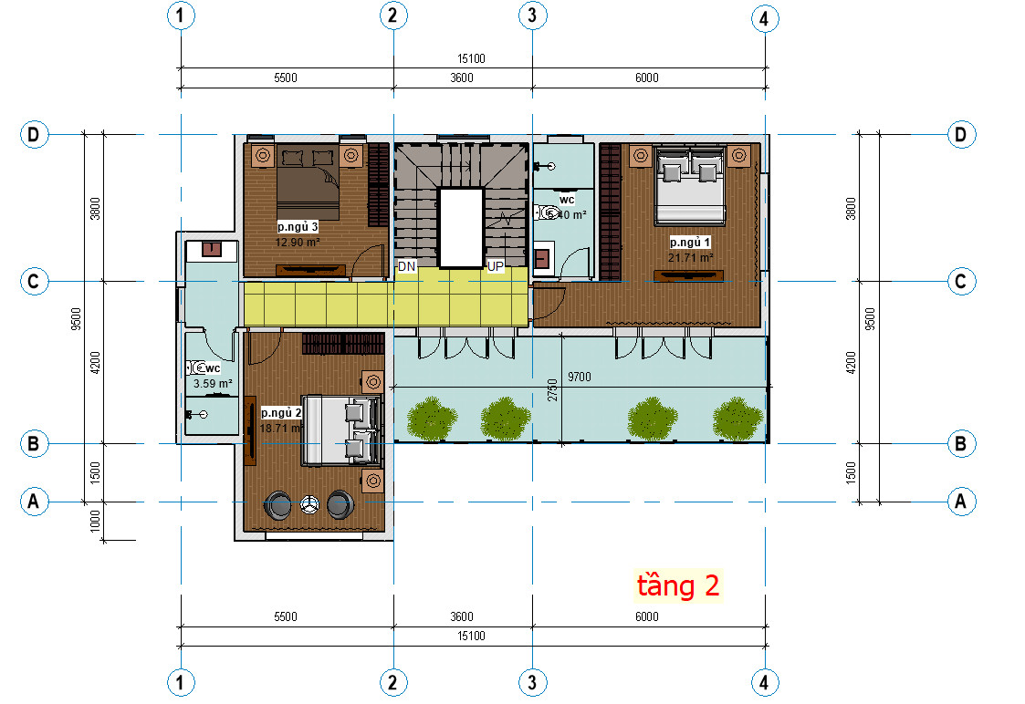
2.2 Bố cục tầng 2
Vì tầng 1 là không gian sinh hoạt chung nên tầng 2 sẽ dùng 100% để ở. Tầng 2 được thiết kế 3 phòng ngủ ở góc bên trái và một phòng ở góc bên phải còn ở giữa là cầu thang. Các phòng đều được thiết kế đơn giản theo kiểu phòng kín có nhà vệ sinh riêng nhưng rất đầy đủ tiện nghi và đảm bảo được không gian riêng tư.

Mặt bằng tầng 2
Khoảng trống còn lại, anh Tiến không thiết kế nốt một căn phòng nữa mà để không gian làm sân nhỏ. Khoảng không gian thoáng đãng này vừa là nơi sinh hoạt trung, vừa làm nơi đón gió, đón ánh sáng mặt trời và lưu thông không khí cho không gian tầng 2.

Mặt bằng tầng 2 bản 3D
2.3 Bố cục tầng 3

Mặt bằng tầng 3
Phần không gian trên tầng 3 được chia đôi ra làm 2. Một nửa đêm làm sân và một nửa còn lại để làm phòng ngủ, nhà vệ sinh và sân phơi đồ.
Căn nhà được thiết kế cực kì thoáng đãng, không gian ngoài trời rất nhiều giúp gia chủ thoải mái, không gây cảm giác bí bách và cự kỳ gần gũi với thiên nhiên.

Mặt bằng tầng 3 bản 3D
Mỗi một công trình sẽ được các kiến trúc sư của HATIHOME thiết kế sao cho phù hợp với tính cách và sở thích của gia chủ. Hy vọng với mẫu thiết kế này, bạn sẽ có thêm những sáng tạo để thiết kế tổ ấm cho gia đình.