Dưới đây là mẫu biệt thự 2 tầng sang trọng, hiện đại đầy tiện nghi. Được xây dựng trên khuôn đất rộng. Công trình biệt thự mang một phong cách kiến trúc đầy nghệ thuật với vẻ đẹp nhẹ nhàng, thanh lịch bên trong chứa chang đầy tinh yêu thương. Chi tiết hơn về ngôi nhà chúng ta sẽ cùng đi tìm hiểu qua.
Ngoại thất mặt tiền

Vẫn là tông màu trắng chủ đạo mang đến một cảm giác dễ chịu, dễ nhìn. Với tông màu trắng sẽ không bao giờ bị lỗi thời theo thời gian. Kết hợp với màu của hệ lam cùng ánh sáng đèn màu của hệ thống đèn trần sẽ giúp cho ngôi nhà trông lung linh hơn mỗi khi đêm đến.

Với ngôn ngữ thiết kế hiện đại, toàn bộ mặt tiền ngôi nhà được sử dụng hệ cửa xinfa nhôm kính. Dòng xinfa hiện nay rất được các gia chủ lựa chọn sử dụng cho công trình của mình vì độ bền chắc cũng như giá thành hợp lí. Với hệ xinfa ngoài làm tăng tính thẩm mỹ thì đây cũng là giải pháp lấy sáng, đón gió tuyệt vời.

Với những không gian mở, ban công hành lang sử dụng khung sắt rào quanh vừa đảm bảo an toàn cũng như tạo cảm giác thoáng. Tận dụng khoảng trống trồng thêm những mảng xanh, tiểu cảnh khiến công trình trở nên sinh động, gần gũi hơn với thiên nhiên. Ngoài ra, cũng hạn chế giảm bớt nhiệt độ nắng nóng vào những ngày hè, thanh lọc một phần không khí khói bụi.
Anh chị có thể xem qua phối cảnh ngôi nhà để cảm nhận thêm:

Bố cục công năng:
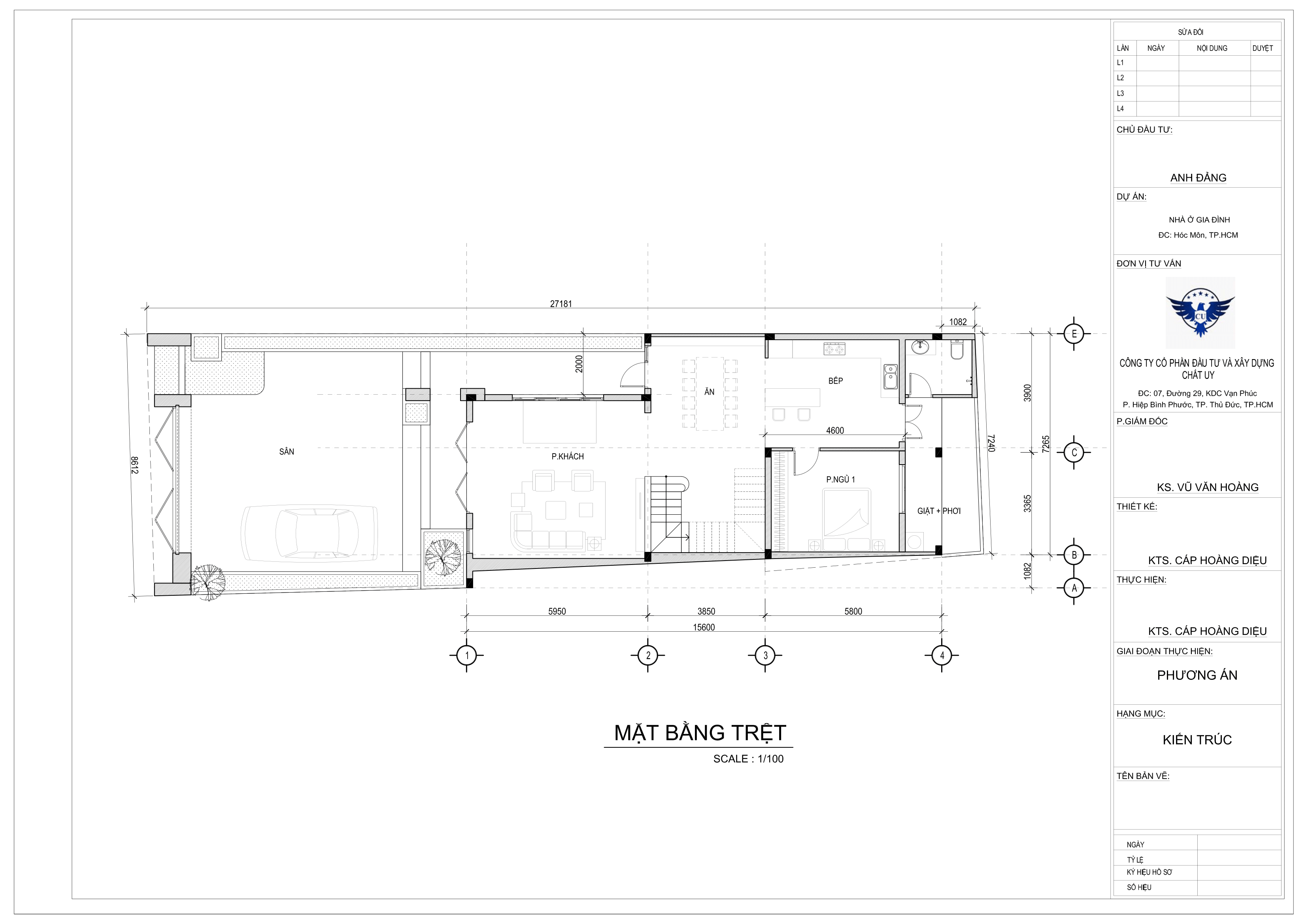
Ngôi nhà được xây dựng lùi về phía sau để tạo khoảng sân tương đối rộng lớn để gia chủ có thể để xe hơi hay đơn giản là có không gian để con cái hay bạn bè có thể sinh hoạt các hoạt động ngoài trời. Việc xây dựng công trình lùi về phía sau cũng tách biệt ngôi nhà với con đường phía trước giảm khói bụi và tiếng ồn.
Mặt bằng tầng trệt được thiết kế 1 Phòng Khách, khu vực bếp và bàn ăn tương đối rộng rãi và liên thông với nhau. 1 phòng ngủ, 1 phòng vệ sinh chung và khu vực sân ướt.

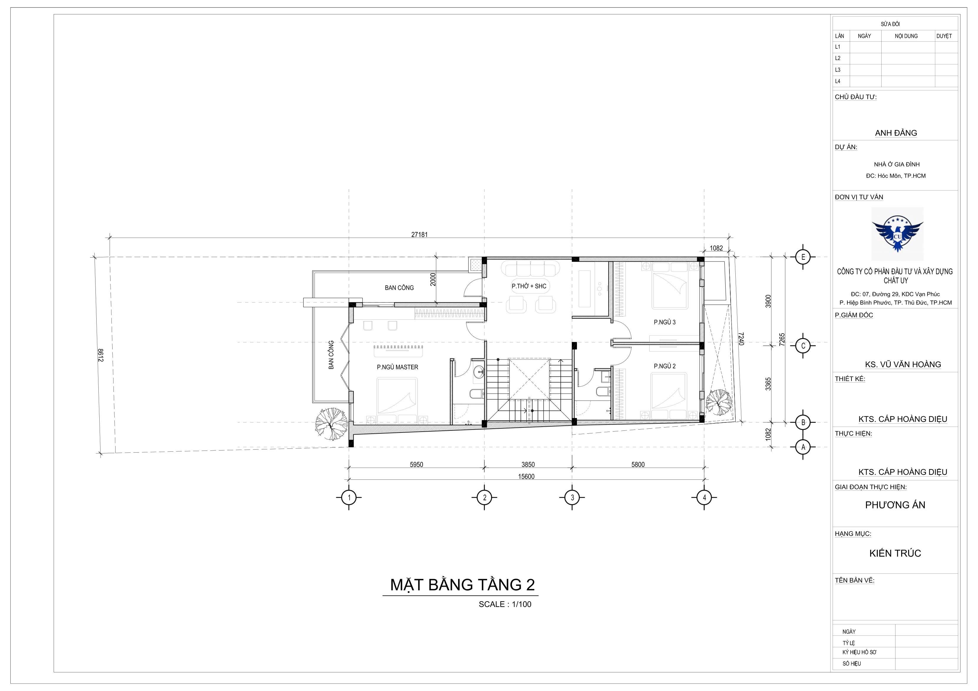
Mặt bằng tầng 2 dành cho không gian của các thành viên trong gia đình với việc thiết kế 3 phòng ngủ, 1 khu vực sinh hoạt chung, phòng thờ và 2 phòng vệ sinh. Ở khu vực tầng 2 được thiết kế 2 lối tiếp cận ra khu vực ban công phía trước nhà để có thể tận hưởng bầu không khí tươi mát và ngắm nhìn toàn cảnh thiên nhiên.

Tìm hiểu thêm về chúng tôi tại đây!
– HATIHOME –
Hotline: 0969.085.669