Nhà phố 3 tầng là loại hình nhà ở xuất hiện ở nước ta từ rất sớm và chiếm tỉ lệ lớn nhất trong các loại hình nhà ở hiện. Bài viết này của chúng tôi nhằm mục đích giải thích cho hành trình gây dựng vị thế của nhà phố và gợi ý một số mẫu nhà phố 3 tầng được ưa chuộng nhất hiện nay.
Mục lục
1. Nhà phố – Kiểu kiến trúc nhà ở được ưa chuộng nhất hiện nay
Nhà phố 3 tầng là kiểu nhà mà gia chủ hoàn toàn có thể thực hiện theo sở thích, ý tưởng cá nhân của mình về nội và ngoại thất. Kiểu nhà có sự riêng tư được đảm bảo tuyệt đối, không bị ảnh hưởng bởi xung quanh.
Bạn cũng không phải lo lắng nếu muốn tổ chức tiệc tùng hay các hoạt động ngoài trời.
Sống ở nhà phố cũng giúp bạn tiết kiệm được một số chi phí không cần thiết so với ở chung cư.
Ngoài ra, nhà phố cao tầng luôn được biết đến là kiểu nhà được xây dựng nhiều ở các thành phố lớn với quỹ đất hạn hẹp. Nhưng đó không phải là tất cả, nhà phố nông thôn cũng rất phổ biến ở nông thôn hiện đại và có rất nhiều biến thể để phù hợp với ưu điểm của địa thế và nhu cầu của người ở.

Mẫu nhà phố với thiết kế 3 phù hợp với nhu cầu người ở
2. Thiết kế nhà phố sang trọng với tông trắng chủ đạo
Ngôi nhà phố 3 tầng với phong cách sang trọng và hiện đại. Vẻ đẹp hiện đại được thể hiện qua cấu trúc hình khối rất đơn giản nhưng được tính toán kỹ lưỡng để đảm bảo các yếu tố về nhiệt độ và ánh sáng.
Thiết kế nhà phố với chiều ngang hạn chế nên toàn bộ mặt tiền mặt tiền được trang trí để làm nổi bật ngôi nhà, phiên bản mái bằng có ban công rộng để có thêm không gian thư giãn, nghỉ ngơi của cả gia đình vào cuối tuần.
Mẫu thiết kế này lấy tông màu trắng làm chủ đạo nhưng đã thổi luồng sinh khí mới vào phong cách nhà kiểu mái thái này. Nhà phố là sự tổng hòa của vẻ đẹp sang trọng, hiện đại nhưng cũng rất gần gũi, thân quen, công trình mái thái kép, nhiều tầng khiến ngôi nhà càng thêm lộng lẫy.
Đây cũng là một thiết kế rất đặc biệt trong việc xây giếng trời nhằm giải quyết vấn đề làm sao để tạo ra những khoảng xanh tươi mát cho ngôi nhà ống có chiều sâu hẹp.

Thiết kế nhà phố với ban công rộng rãi
Mẫu thiết kế nhà phố sử dụng gam màu trắng tinh khôi để hoàn thiện vẻ đẹp của ngôi nhà. Hiện đại, thanh lịch, tinh tế là những từ miêu tả chính xác nhất vẻ đẹp của mẫu thiết kế này.
Vẫn theo phong cách giảm bớt thiết kế nên những chi tiết được chọn làm điểm nhấn vẫn vô cùng mộc mạc và tạo nên một tổng thể hài hòa. Hàng gạch tông xám ở mặt trước rất bắt mắt.
3. Chi tiết mẫu nhà phố 3 tầng qua bản vẽ
Bạn có thể tận dụng diện tích của ngôi nhà một cách tối đa nhất. Với thiết kế 3 phòng ngủ được xây dựng hợp lý ở tầng 1.
Đây là không gian riêng tư nên sẽ được xây dựng tách biệt, chắc chắn sẽ là nơi nghỉ ngơi thoải mái sau một ngày bận rộn với công việc mệt mỏi bên ngoài.
Đồng thời, việc kết hợp các giải pháp thiết kế tối giản sẽ giúp căn phòng trở nên thông thoáng hơn, mang đến sự nhẹ nhàng và êm dịu.

Bản vẽ mặt bằng tầng 1
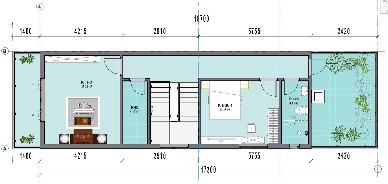
Điểm nhấn của tầng 2 là phòng thờ cùng 1 phòng ngủ và sân thượng rộng rãi, là không gian thoáng đãng nên nơi đây rất thích hợp để gia chủ xum họp các thành viên trong gia đình.
Đồng thời, bạn có thể kết hợp trồng rau và tạo một khu vườn nhỏ tại nhà. Mỗi khi muốn thư giãn, tận hưởng không khí thiên nhiên, bạn có thể ra ngay khu ban công này cùng một tách trà là một sự lựa chọn vô cùng hoàn hảo.

Bản vẽ thiết kế tầng 2 của nhà phố
Ở tầng trên cùng của mẫu nhà phố 3 tầng được thiết kế gồm 1 phòng khách, 1 phòng ngủ và 1 phòng bếp. Đây được coi là tầng sinh hoạt chung của cả gia đình, giúp mọi người thư giãn mà vẫn có thể quây quần bên nhau.

Bản vẽ mặt bằng tầng 3 của nhà phố
Trên đây, HATIHOME đã giới thiệu đến bạn mẫu nhà phố 3 tầng sang chảnh, hiện đại nhất hiện nay. Với mong muốn rằng từ những chia sẻ trên của chúng tôi sẽ giúp quý khách có thể lựa chọn được mẫu nhà phố phù hợp và đẹp nhất cho gia đình mình.