Mẫu thiết kế nhà hai tầng mái Nhật theo phong cách châu âu với tiêu chuẩn riêng biệt, vật liệu sử dụng bền vững, thân thiện môi trường. Công trình được các kiến trúc sư tại chắc huy thực hiện, mang đến nét đẹp trang trọng, mới mẻ nhưng vẫn bình dị, gần gũi và truyền thống với làng quê Việt Nam. Mời bạn đọc cùng chiêm ngưỡng công trình thông qua bản vẽ dưới đây.
Mục lục
1. Tổng quan công trình và thiết kế ngoại thất
Ngoại thất của công trình lựa chọn gam màu trắng sáng làm chủ đạo hoàn hảo, giúp nổi bật tất cả các màu sắc của những vật liệu khác. Đây là màu sắc được lựa chọn ở hầu hết các công trình theo phong cách châu Âu này.
Phần mái Nhật xanh than sang trọng được phối nhịp ở tất cả các công gian khiến tầng 1. Thoạt nhìn, chúng ta sẽ khó nhìn nhận được sự khác biệt giữa mái Nhật và mái Thái. Tuy nhiên, mái Nhật có độ dốc vừa phải, kết cấu và cách xây dựng cũng khác. Đặc biệt, xây dựng mái Nhật tiết kiệm chi phí hơn so với nhà mái thái.

Công trình nổi bật với gam màu trắng
Hệ cửa của ngôi nhà kết hợp khéo léo giữa chất liệu gỗ và nhôm kính. Vừa đảm bảo được sự chắc chắn, sang trọng của ngôi nhà nhưng cũng tận dụng được ánh sáng thiên nhiên. Ngoài ra còn khoe được nội thất bên trong của ngôi nhà. Với hệ thống cửa chính bằng gỗ tự nhiên, kiểu dáng cũng khá đơn giản, chạm khắc tinh tế và có thêm một số ô kính cường lực nhỏ bên cạnh. Sự kết hợp tinh tế giữa các hệ cửa này mang đến một công trình vừa hiện đại, vừa giữ được nét đẹp truyền thống.

Kết hợp khéo léo các chất liệu cửa
Phần chân tường của ngôi nhà được lát bằng đá sang trọng, kết hợp với hai thẻ màu xanh dương. Các màu sắc cùng tone với hệ mái tạo thành sự đồng nhất cho toàn bộ không gian.
Phần cột trụ ngôi nhà mái vòm, các phào chỉ tinh tế, tưởng chừng đơn giản nhưng cũng đủ giúp cho mặt tiền sang trọng hơn hết.

Mẫu nhà còn chú trọng đến tiểu cảnh và cây xanh
Với mong muốn của gia chủ về một không gian tinh tế nhưng phải hoà hợp với thiên nhiên. Đội ngũ KTS đã tận dụng diện tích như trước nhà, cửa sổ để có các bậu cây, trồng hoa hoặc cây cũng đều rất hợp lý.
2. Thiết kế công năng công trình
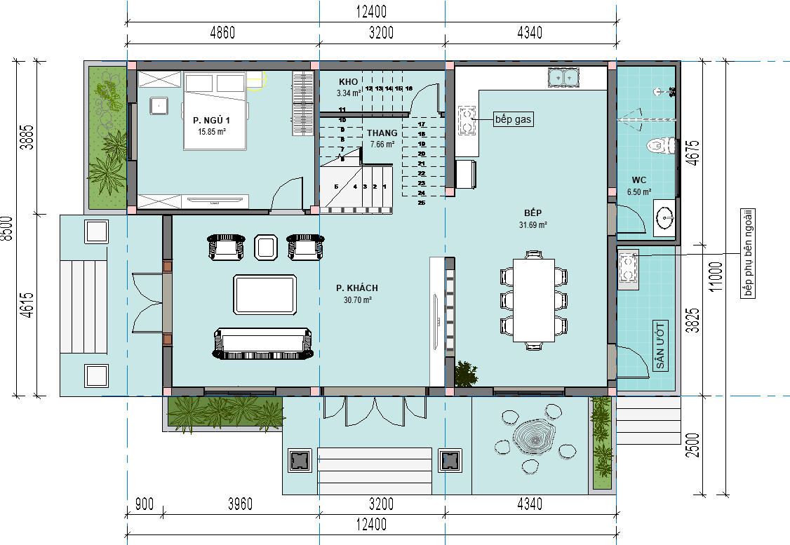
2.1 Bố trí mặt bằng tầng 1
Từ sảnh chính của ngôi nhà đi vào là không gian phòng khách rộng rãi với diện tích hơn 30 mét vuông. Bên cạnh phòng khách là không gian phòng ngủ.
Cầu thang đặt ở trung tâm ngôi nhà, các kiến trúc sư cũng tận dụng gầm cầu thang để làm kho, giúp gia chủ có thể chứa những đồ dùng không sử dụng nhiều. Không gian tiếp theo của ngôi nhà bố trí phòng bếp, phòng ăn. Khu vực nhà vệ sinh và sân ướt đặt ở cuối cùng, vừa đảm bảo cho việc sử dụng được thuận tiện nhất vừa đảm bảo yếu tố phong thủy. Từ sân ướt đi ra cũng có cửa sau rất tiện lợi.

Bố trí công năng mặt bằng tầng 1
2.2 Mặt bằng công năng tầng 2
Tầng hai của ngôi nhà tập trung vào các không gian riêng tư và sinh hoạt chung của các thành viên trong gia đình. Phòng thờ được bố trí ở hướng cửa chính, có ban công rộng rãi. Phòng sinh hoạt chung ngay ở cầu thang đi lên giúp cho các thành viên trong gia đình sinh hoạt và sử dụng được tiện lợi nhất. 2 phòng ngủ bố trí đối diện so le có diện tích rộng rãi. Khu vực sân phơi và nhà vệ sinh bố trí bên cạnh nhau.

Mặt bằng công năng tầng 2
Tầng 2 của công trình có 2 ban công, ở các phòng chức năng cũng đều bố trí cửa sổ. Điều này đúng với mong muốn của gia chủ, mang đến một không gian sống thoáng đãng và thoải mái nhất có thể.
Như vậy, chúng ta có thể thấy rằng, phong cách châu Âu hiện đại đã mang đến một công trình nhà ở lý tưởng, tinh tế, sang trọng mà vẫn rất gần gũi. Không chỉ đảm bảo yếu tố thẩm mỹ, mà việc sắp xếp công năng cũng tối ưu, hợp phong thuỷ.