Nếu như sắp tới anh chị chuẩn bị xây dựng cho mình một tổ ấm nhưng vẫn còn băn khoăn về không gian sống thì dừng nên bỏ lỡ qua mẫu biệt thự sân vườn 1 tầng mái Nhật này! Một không gian sống xanh thanh bình tại một vùng quê miền Tây yên ả với khoảng sân vườn rộng rãi và khung cảnh thiên nhiên xung quanh nhà đầy tươi mát.

Ngôi nhà biệt thự 1 tầng sân vườn với phong cách thiết hiện đại kết hợp với không gian truyền thống miền quê mang đến sự hài hòa và gần gũi với thiên nhiên cũng như không kém phần tiện nghi

Về ngoại thất của công trình chúng ta cũng có thể thấy:
Ngôi nhà được thiết kế đơn giản sử dụng những khối hình học với đường nét vuông vức đầy dứt khoác.

Vật liệu được sử dụng ở đây là hệ nhôm kính mà chúng ta thường thấy. Điểm nhấn chính ở công trình này chính là hệ mái Nhật đề cao sự tiện lợi, đơn giản, đúng với phong cách sống không cầu kì của người Nhật.

Ngoài ra, mặt tiền công trình cũng được thiết kế hệ lam nhựa giả gỗ tạo sự bắt mắt cho công trình, cùng với đó là hệ đèn trang trí gắn tường và hệ downlight trên trần nhà khiến cho không gian ngoại thất công trình biệt thự trở lên lung linh hơn
Mẫu biệt thự sân vườn 1 tầng sử dụng tông màu trắng chủ đạo phủ lên toàn bộ tường bao của công trình làm toát lên sự trang nhã, tinh tế . Tông màu trắng cũng hay được sử dụng nhiều trong các phong cách thiết kế hiện nay.
Tại chân tường của công trình gây ấn tượng với thiết kế mảng miếng hòn nam bộ giúp cho công trình trông đẹp hơn, lại vừa tạo cảm giác mát mẻ đúng với tên gọi biệt thự sân vườn.
Bản vẽ ngôi nhà
Bản vẽ tổng thể của công trình biệt thự sân vườn 1 tầng mái Nhật: Với diện tích vô cùng là rộng lớn.

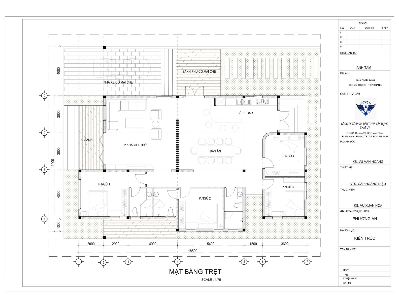
Bản vẽ mặt bằng công năng tầng trệt

Ngôi nhà với nhiều lối tiếp cận khác nhau rất thuận tiện di chuyển. Cách bố trí khoa học và đầy đủ các phòng chức năng: phòng khách và thờ, khu bếp và bàn ăn, 4 phòng ngủ và 3 phòng vệ sinh.
Bên hông nhà là gara ô tô ở bên ngoài.

Tìm hiểu thêm về chúng tôi tại đây!
– HATIHOME –
Hotline: 0969.085.669